Web LS pirunkammari Tirila2021

Arkkitehtuuri ja sisustus

Ainutlaatuinen, hienostunutta barokkiarkkitehtuuria edustava Louhisaari on harvinainen kokonaiselämys Suomessa. Tutustu kartanolinnan eri aikakausia henkivään sisustukseen.

Ulkoarkkitehtuuri
Linnan juhlallinen vaikutelma johtuu rakennuskokonaisuuden onnistuneesta jäsentelystä. Ikkuna-akselin jaottelema valkoiseksi rapattu tiilimuuri nousee karun yksinkertaisena säännölliseksi hakatun hiekkakivivyön koristamasta kivijalasta. Komea hiekkakiviportaali, räystästä tukeva konsolirivistö ja kattokolmiot muodostavat julkisivujen ainoan koristelun. Räystäiltä kaartuva korkea ns. hollantilainen aumakatto on katettu paanuilla. Vanhojen kuvien mukaan kattorakennelman huippuna on ollut harjalta nouseva lyhty tornikelloineen, jonka lisäksi 1600-luvun avotakkojen hormeihin liittyvät savupiiput ovat puhkoneet vesikattoa ja piirtyneet korkeina taivasta vasten.

Sivurakennuksissa on ollut samanlainen hollantilainen satulakatto kuin Askaisten kirkossa on edelleenkin. Nykyinen yläosasta aumattu satulakattomuoto on 1770-luvun korjauksen jäljiltä. Ikkunoissa on rokokooaikainen 16-ruutuinen nappulapuitejako. Julkisivujen ankkuriraudoitus on 1600-luvulta. Linnan keittiö ja leivintupa ovat olleet oikeanpuoleisessa eli luoteisessa sivurakennuksessa vuoteen 1792 asti. Vasemmanpuoleinen eli kaakkoinen sivurakennus on mahdollisesti muita rakennuksia vanhempi.

Asuinkerrokset
Vaikka Louhisaaren linna edustaa arkkitehtonisesti lähinnä hollantilaista myöhäisrenessanssia, on linnan eri kerrosten käyttö suunniteltu vielä keskiajalta periytyneiden asuintottumusten mukaisesti.

Ensimmäinen eli pohjakerros on käsittänyt linnanväen ja palveluskunnan arkiset oleskelutilat sekä talous- ja varastosuojia. Turvallisuussyistä linnasta oli ainoastaan yksi uloskäynti, nimittäin keskihallista suljetulle linnanpihalle avautuva pääovi. Toinen kerros on ollut herrasväen varsinainen asuinkerros ja kolmas kerros taas juhlakerros.

Periaatteessa sama pohjakaava toistuu linnan kaikissa kolmessa kerroksessa. Kerroksia yhdistää sisääntulohallista vasemmalle nouseva, laakealla ristiholvilla katettu portaikko sekä palveluskunnan käytössä ollut kierreporras.

Louhisaari on sisustettu eri aikakausien tyyliin. Kartanolinnan I ja III kerros on sisustettu 1600-luvun asuun ja II kerros eli asuinkerros on sisustettu 1700-1800-lukujen tyyliin.

Louhisaaren vanhasta irtaimistosta on säilynyt ainoastaan osia. Osa Mannerheimien irtaimistosta on seurannut linnan mukana omistajien vaihtuessa ja osa on saatu takaisin rouva Inkeri Hovisen ja eversti Viljo Hovisen lahjoittamina. Täydennykseksi on Suomen kansallismuseon kokoelmista valittu jo aikaisemmin Louhisaaren Mannerheimeiltä ostettuja esineitä sekä länsisuomalaisista kartanoista peräisin olevia huonekaluja, jollaisia voi olettaa aikoinaan käytetyn Louhisaaressakin. Mannerheimien aikaisten huoneiden sisustamisessa ovat auttaneet entisistä Louhisaaren esineistä saadut valokuvat ja kreivi C. E. Mannerheimin perukirja vuodelta 1837.

Kellarit
Leveä porraskäytävä johtaa alakerroksen hallista päärakennuksen kaakkoisosan alla sijaitseviin kallioperustaisiin kellareihin, jotka käsittävät kolme tiilipilarin kannattamalla ristiholvilla katettua avaraa huonetta sekä pienen tynnyriholvatun kellarin. Tämän vierestä alkava kierreportaikko johtaa läpi talon III kerrokseen asti.

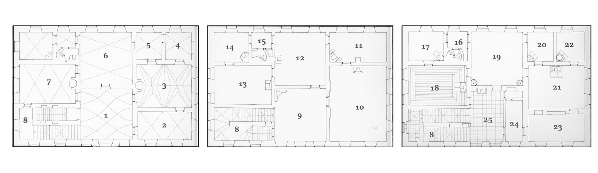
Louhisaari Pohjapiirros

Tutustu alla olevista alleviivatuista linkeistä muutaman Louhisaaren huoneen sisustukseen.

1. kerros
1) eteishalli
2) keittiökamari
3) kivisali
4) ruokakamari
5) varastohuone
6) naistentupa
7) linnantupa

8) portaikko

2. kerros
16) välikkö
17) isoäidin makuukamari

18) ruokasali
19) iso salonki

20) luola

21) förmaaki

22) vihreä kamari

23) kreivin kirjasto

24) kreivin eteinen
25) halli

3. kerros
8) portaikko

9) halli
10) juhlasali

11) pirunkamari

12) iso herrainkamari
13) iso makuukamari
14) pieni sininen makuukamari

15) välikkö, josta kierreportaat johtavat kellariin